恭喜增城,卖出了年度最贵的一宗宅地, 星辰影视.
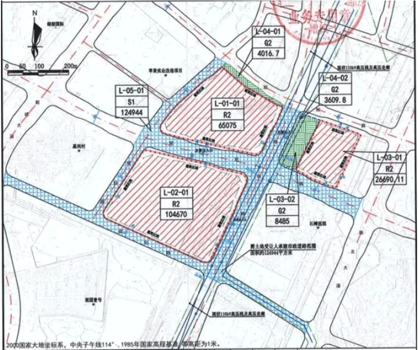
刚刚,广州港科置业有限公司以38 星辰影视在线,3亿元的底价,拿下增城石滩镇南北大道西侧18102203A20095号地块,折合楼面价约6499元/平。 。
据悉,广州港科置业有限公司股东为港龙地产&皇朝傢俬 星辰影视高清, 。

值得一提的是,本次成交地块,曾于今年7月挂牌出让 星辰影视免费观看,后因故终止, 。
当时地块分为两宗出让,合计总价33 星辰影院,6亿元,计容总建面50万平,起拍楼面价约7200元/平。 。


回炉重造后,除了将两宗地块合并,还增加了旁边的一宗小地块,建筑面积达到58,9万平,是增城今年成交的,建筑面积最大的一宗宅地。 在线影视。

本次成交地块,靠近规划地铁16号线石滩西站,广惠高速新城大道出入口(规划), 临近城市主干道东西大道和南北大道,附近有广惠高速,花莞高速及北三环高速 等 星辰影视,交通便捷,地段优越, 。

配套方面 星辰影视在线,地块周边有石滩镇中心卫生院,黄冈中学,石滩中学,石滩第二中学等,基础设施较为齐全, 。
根据地块规划要求,地块还需要配建48班小学,18班幼儿园,老年星光之家,文化活动室,肉菜市场和居民健身场所等公建配套 星辰影视高清, 。

至于房价,周边住宅项目也比较多,如在售的嘉御豪庭、敏捷绿湖首府,报价在1,55-1 星辰影视免费观看,7万元/平上下;二手项目如碧桂园嘉誉花园、观园壹号,二手参考价在1,1-1,44万元/平左右。 。
虽然今年增城的土拍,相对于其他区有所降温,但瘦死的骆驼比马大。
截至目前为止,增城仍是全市成交地块最多的一个区域。

而这个月,增城还有3宗宅地待出让,其中一宗已有底价报出。
增城土拍,能否一扫此前的阴霾,再冲刺一把?我们拭目以待!



